Loading...

Tahoe park model

Florida City, Florida, United States

  • #ID: 7
  • Views: 155
Featured Urgent Highlight

$31,800

Overview

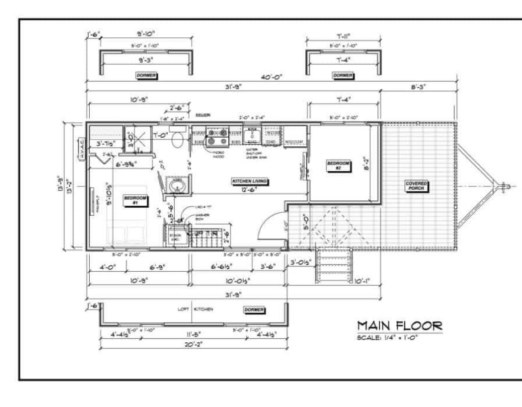
14×40 Lake Tahoe Park Model Cabin-Turn Key -off Display- Replacement Model in construction

Cabin Type: Lake Tahoe Park Model

Building Size: 14’x40′

Porch: 8′ Screened in Porch

Siding Type: LP Lap Siding

Siding Color: Harbor Mist

Roof Color: Burnished slate

Windows: (2) 34×60, (2) 36×60, (4) 22×60, (1) 20×24, (1) 18×28;

Door: (1) 36″ 9 Light entry door,

Other: (2) bedroom; (1) bathroom; closets; washer/dryer area; kitchen/living area;Loft

Other: 

 OSB walls

2×4 16″ on center wall studs

Close cell spray foam under the floor

2×6 treated floor joists 16″ on center

LP Lap Siding W/ Wooden Shakes in Gable

2×6 roof trusses 24″ on center w/ solid 7/16″ OSB sheeting

3/4″ plywood flooring

Rustic Medium Brown kitchen cabinets

36″ shower w/ toilet and vanity

Light fixtures

Lifeproof Laminate flooring throughout

R-13 insulation in walls; Spray foam ceiling and under the floor

1×8 tongue and groove white pine boards on walls and ceiling

Trim installed for doors, windows, and ceiling corners with accent color

Loft above bedroom and bathroom With ladder

Property details

Type:

House on Wheels

Property size:

560 SqFt

Login to Review

0 Reviews

Similar Property

View all

Cookies

This website uses cookies to ensure you get the best experience on our website. Cookie Policy

Accept